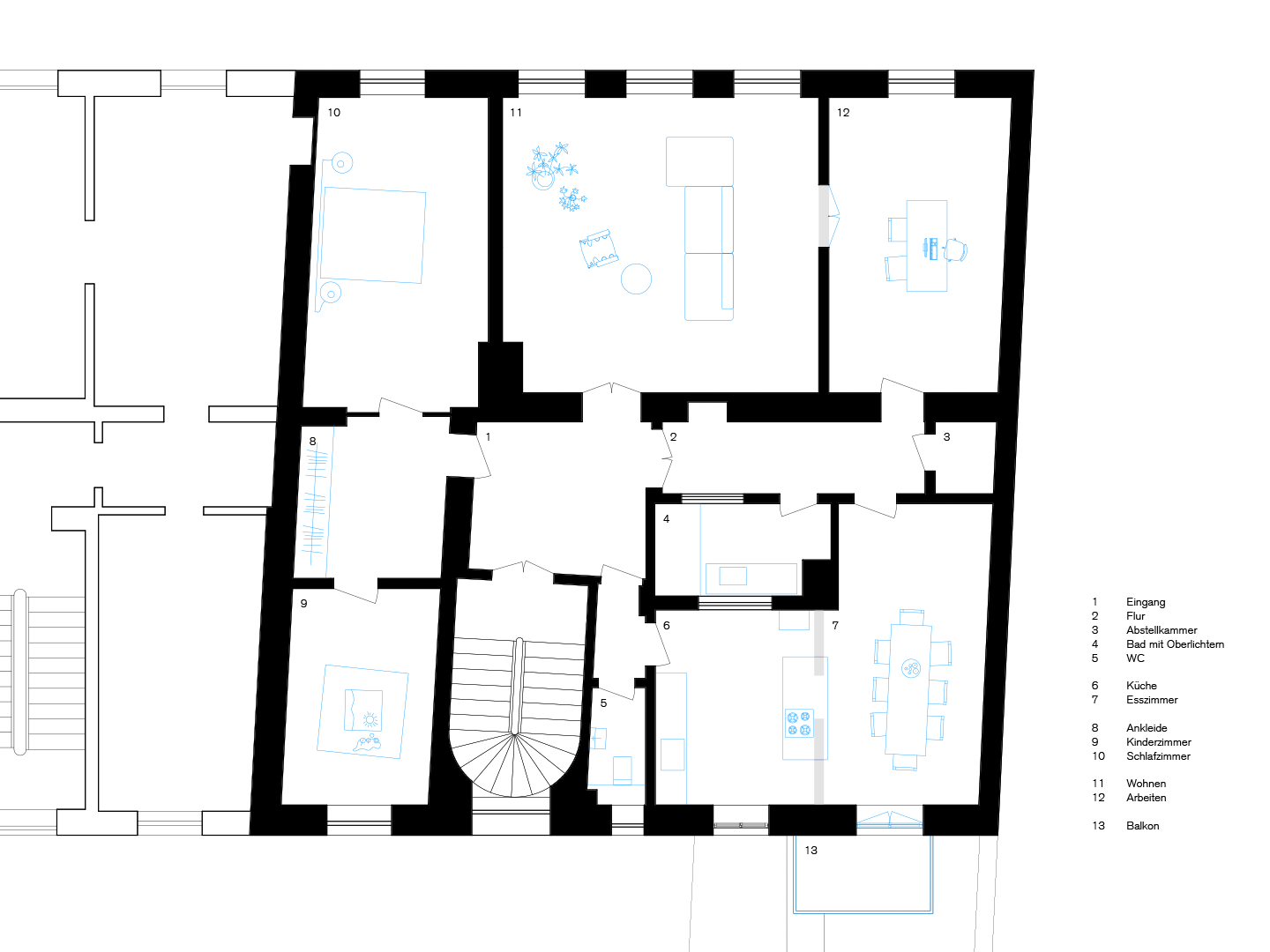
Wohnung L
Ort: München
Bauherr: Privat
Massnahmen: Umbau und Sanierung
Flaeche: 145qm
Fertigstellung: November 2015
Fotos: Burko Jaeger
© Studio Weitz 2025. All rights reserved.