Baierbrunn
Ort: Baierbrunn
Bauherr: Privat
Massnahmen: Umbau und Sanierung
Flaeche: 160qm
Fertigstellung: Oktober 2017
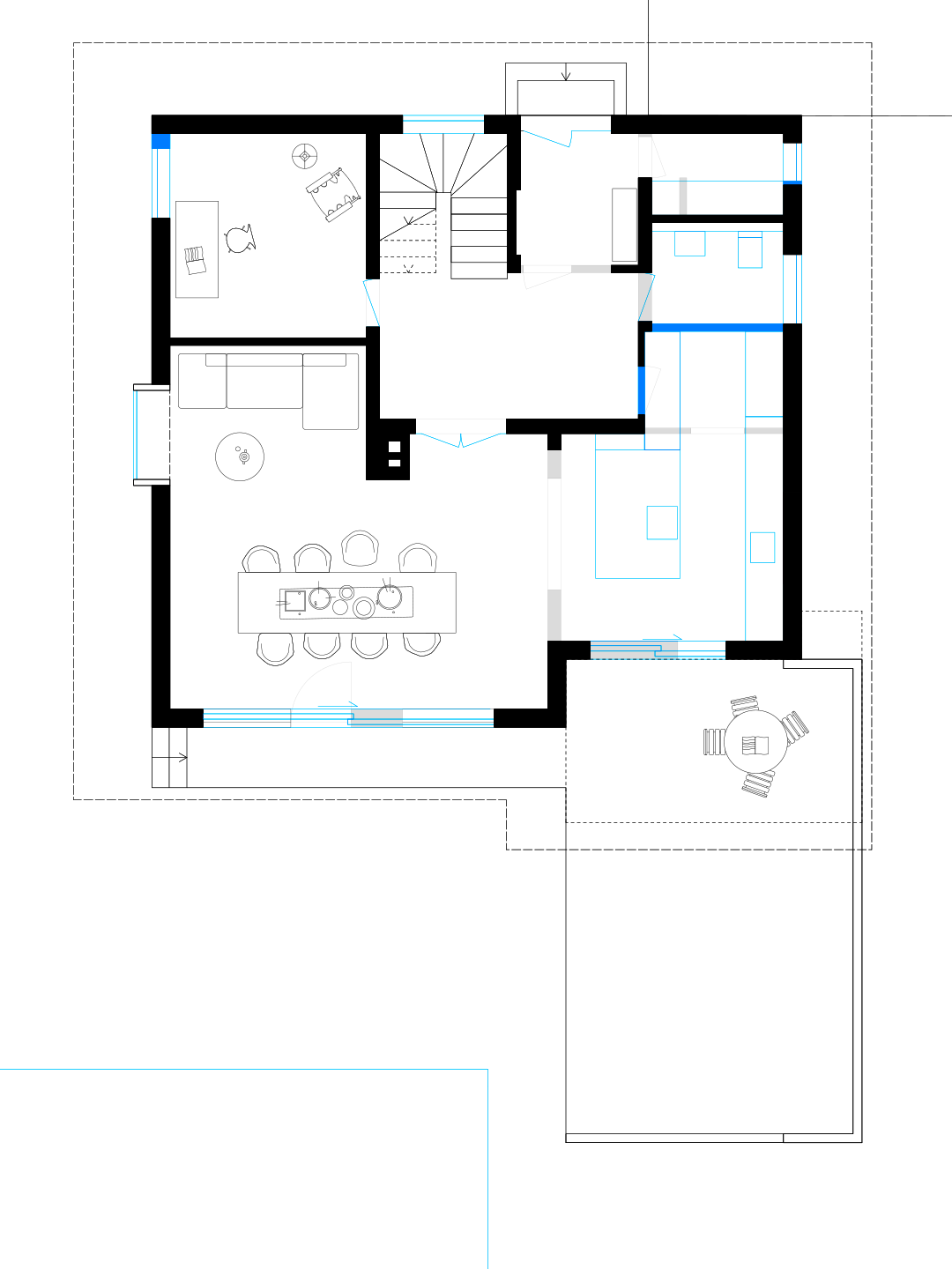
Da sich das Haus noch im Orginalzustand von 1970 befand, mussten alle technischen Systeme erneuert und die Fassade ertüchtigt werden.
Der kleinteilig angelegte Grundriss wurde durch räumliche Eingriffe in eine neue, grosszügige Aufteilung umgewandelt; Tür- und Fensterproportionen wurden überarbeitet.
Der zurückhaltende und fugenlose Bodenbelag im Erdgeschoss betont den Raumfluss und lässt die Räume licht und großzügig wirken. Große Schiebe-Elemente stellen Bezüge zum Garten her.
Fotos: Boo Yeah
© Studio Weitz 2025. All rights reserved.