
Valleystrasse
Ort: München Sendling
Bauherr: Privat
Massnahmen: Umbau und Sanierung
Flaeche: 120qm
Fertigstellung: 2012
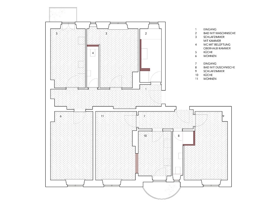
Da sich die Wohnungen trotz Denkmalschutz in einem katastrophalen Zustand befanden, mussten sie zunächst soweit möglich rückgebaut werden. Sämtliche nicht bauzeitliche Einbauten wurden entfernt und bis auf die Originalsubstanz zurückgeführt.
Alle Fenster und Innentüren mussten in Abstimmung mit der Denkmalschutzbehörde erneuert werden.
Im Grundriss wurde die ursprüngliche Wohnungsteilung der nebeneinander liegenden Einheiten sowie die ursprüngliche Raumstruktur wiederhergestellt. In der kleineren Wohneinheit wurde die Küche durch einen Durchbruch zum Wohnzimmer geöffnet und dem Bad eine “Duschbox“ zugefügt, vom Schlafzimmer abgeteilt, um ein funktionierendes Duschbad zu erhalten.
Durch die Reduktion bzw. Rückführung auf die Materialien Eichenparkett, weißer Kalkputz und kiesel-farbene Zementplatten wirken die Räume großzügig und die Raumproportionen kommen wieder zur Geltung.
Fotos: Tuulikki Jäger, Boo Yeah

© Studio Weitz 2025. All rights reserved.